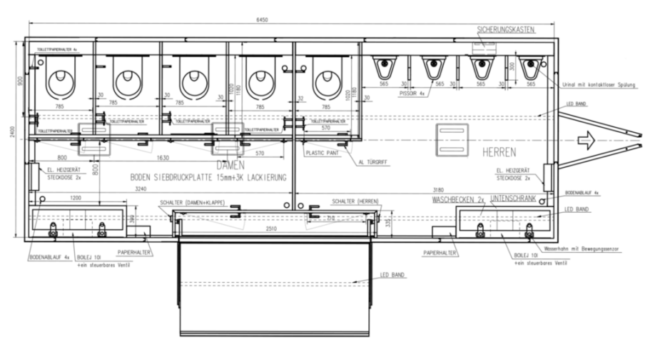
Toilettenanhänger
Event-WC 2765/240
Gesamtgewicht ca.: 2700 kg
Leergewicht ca.: 2390 kg
Länge ca.: 6450 mm
Breite ca.: 2400 mm
Höhe ca.: 2150 mm
Bereifung: 10"
Achsenanzahl: 2
Gebremst: Ja
Event WC 1527/227
Gesamtgewicht ca.: 1500 kg
Leergewicht ca.: 1036 kg
Länge ca.: 2700 mm
Breite ca.: 2200 mm
Höhe ca.: 2130 mm
Bereifung: 195 55 R 10"
Achsenanzahl: 1
Gebremst: Ja










